

В наличии
Цена по запросу
— Актуальные цены
— Персональные и проектные скидки
— Сроки поставки
Описание товара
Преимущества внутреннего блока мультизональной VRF системы RK-MD56Q4/DF
- Компактный корпус упрощает монтаж
- Встроенная дренажная помпа - высота подъема 500 мм
- Улучшенные эргономические параметры
- Соответствует по размеру стандартной ячейке подвесного потолка
- Встроенный электронный расширительный вентиль
- Изящный дизайн декоративной панели
Описание четырехпоточных кассетных внутренних блоков VRF Dantex
Четырехпоточные кассетные внутренние блоки Dantex имеют ряд функциональных преимуществ при их использовании в жилых, общественных и административных помещениях. Благодаря четырехпоточной конструкции агрегат формирует направленный в четырех направления воздушный поток, вследствие чего воздух равномерно распространяется по всему объему, кондиционируемого помещения, избегая попадания непосредственно в рабочую зону и на людей. Малая глубина корпуса (Всего лишь 230 мм) позволяет производить установку в условиях ограниченного пространства.
Назначение
Четырехпоточные кассетные внутренние блоки являются частью мультизонального кондиционера VRF и выполняют функцию комплексной обработки воздуха - охлаждение/нагрев, осушение, фильтрацию в рабочих зонах кондиционируемых помещений.
Способ установки
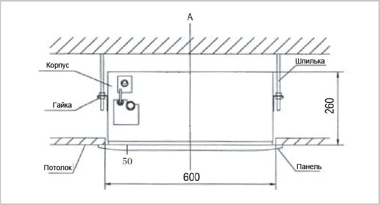
Компактные размеры четырехпоточного кассетного внутреннего блока позволяют производить установку в условиях ограниченного пространства в подвесном потолке типа армстронг либо подвесном потолке другой конструкции. Монтаж агрегатов предполагает установку внутреннего блока на монтажной позиции, подключение к сети питающего напряжения (220/50/1), к линии дренажного трубопровода, к фреоновым коммуникациям мультизональной системы VRF. Подробно способ установки описан в инструкции по монтажу внутренних блоков мультизональной системы VRF серии MVS.
Комплектация
Четырехпоточные внутренние блоки оборудованы декоративной панелью, воздушным фильтром, воздушным теплообменником, электронным ТРВ, жалюзи с изменяемым углом наклона, дренажным насосом, инфракрасным пультом дистанционного управления.
Многофункциональный проводной пульт группового управления. Пользователь может с помощью пульта управлять работой до 64-ех внутренних блоков: контролировать работу, изменять режим работы, определять временные интервалы. Программный комплекс позволяющий с персонального компьютера управлять работой всех элементов мультизонального кондиционера VRF. Преобразователь протокола RS-232/RS-485. Gateway предназначен для интеграции мультизональной системы VRF в комплексную систему диспетчеризации. Проводной пульт предназначен для дистанционного управления внутренними блоками.
Габаритные размеры
Электрическая схема
Технические характеристики
| Серия | RK-MD22-56Q4/DF |
| Производительность в режиме охлаждения | 5.6 |
| Производительность в режиме обогрева | 6.3 |
| Размер (ШхВхГ) | 580x254x580 |
| Вес | 24 |
| Размеры панели (ШхВхГ) | 650x30x650 |
| Вес панели | 3 |
| Расход воздуха (выс./сред./низк.) | 570/400 |
| Уровень шума (выс./сред./низк.) | 39/36 |
| Максимальная потребляемая мощность | 0.063 |
| Напряжение | 0.063 |
| Управление | 220-240 |
- Вес
- 24
- Вес панели
- 3
- Максимальная потребляемая мощность
- 0.063
- Напряжение
- 0.063
- Производительность в режиме обогрева
- 6.3
- Производительность в режиме охлаждения
- 5.6
- Размер (ШхВхГ)
- 580x254x580
- Размеры панели (ШхВхГ)
- 650x30x650
- Расход воздуха (выс./сред./низк.)
- 570/400
- Серия
- RK-MD22-56Q4/DF
- Управление
- 220-240
- Уровень шума (выс./сред./низк.)
- 39/36
Мы предлагаем следующие способы доставки товара:
Самовывоз из пункта выдачи
Самостоятельное получение заказа в пункте выдачи. Дата и время получения заранее согласуется с менеджером магазина.
Отгрузка товара юридическим лицам осуществляется только при наличии печати или правильно оформленной и заполненной доверенности, наличии паспорта получателя.
Курьерская доставка по Москве
Доставка по адресу покупателя или до пункта приема транспортной компании в г. Москве. Дата и время доставки заранее согласуется с менеджером магазина.
Доставка транспортной компанией по России
Доставка транспортной компанией по России до пункта выдачи транспортной компании или до конечного адреса покупателя.
Мы предлагаем следующие способы оплаты товара:
Оплата наличными
Оплата за наличный расчет для физических и юридических лиц. После внесения денежных средств Покупатель подписывает товаросопроводительные документы и получает кассовый чек.
Безналичная оплата
Мы работаем с физическими и юридическими лицами за безналичный расчёт со 100% предоплатой с оформлением всех предусмотренных законодательством документов. Счёт на оплату направляется Покупателю на электронную почту после запроса счета через форму на сайте либо по электронной почте. Цена на заказанный товар действительна в течение 2 дней с момента оформления Заказа.
Электронные способы
Оплата Заказа электронными способами, в т.ч. банковскими картами. Оплата Заказа данным способом доступна запросом ссылки на оплату у нашего менеджера.
Если у вас возникнут вопросы по оформлению заказа, вы можете обратиться к нам, позвонив по телефону +7 495 150-51-78 или связавшись по электронной почте sale@ru-dantex.com. Мы гарантируем оперативный ответ на ваш запрос и предоставление наилучших условий от официального поставщика DANTEX.
Мы предоставляем официальную гарантию на всю продукцию.
Сервис расширенной гарантии включает в себя:
- Приемку в сервисном центра для выполнения диагностики дефекта.
- Ремонт.
- Бесплатную доставку клиенту.
Контакты гарантийного отдела:
Телефон: +7 495 150-51-78E-mail: sale@ru-dantex.com
Для расчета коммерческого предложения или получения счета на поставку оборудования DANTEX оставьте заявку в форме ниже или свяжитесь с отделом продаж по телефону +7 495 150-51-78 или электронной почте sale@ru-dantex.com. Мы гарантируем оперативный ответ на ваш запрос и предоставление наилучших условий от официального поставщика DANTEX.
Специалист по решениям DANTEX:
- Окажет профессиональную консультацию.
- Сообщит вашу цену на продукцию.
- Сообщит информацию об актуальных акциях и скидках.
- Подскажет ближайшее к вам отделение с наличием нужной продукции.
- Согласует с вами возможную дату и время доставки.











Нет отзывов об этом товаре.